Aménagement du Jardin
Derniers articles

Comment faire des bordures d'allées ?
Il n’est pas suffisant d’avoir un beau jardin, une allée bien décorée est aussi très importante car elle est le principal décor d’une maison. C’est pourquoi, on se démène souvent pour avoir un beau jardin et on cherche constamment tous les moyens pour l’embellir. C’est surtout la façon de décorer nos allées qui est le plus difficile, on ne sait jamais quelle bordure utilisée alors que c’est elle qui assure réellement l’embellissement d’une allée.
Lire la suite
Fabriquer un silo naturel
Tout ce qu’il faut connaître pour mener à bien la fabrication d’un silo naturel, comment bien choisir l’emplacement de votre silo et les différents points à prendre en compte pour profiter d’un silo efficace.
Lire la suite
Le châssis de jardin
Le châssis est une installation destinée à moduler les fluctuations de température afin d’en optimiser les effets sur la culture. Il possède un corps et un couvercle transparent pour laisser entrer la lumière. Un châssis est dit « froid » ou « chauffé » (muni de câbles chauffants).
Lire la suite
Les serres de jardin
Une serre est une petite construction très utile dans un jardin, elle sert entre autres à protéger les plantes des intempéries et à préparer les semis. Les jardiniers peuvent construire eux mêmes leur serre où l'acheter en kit dans un magasin spécialisé.
Lire la suite
L’installation d’un arrosage enterré
Avoir un jardin, ce n’est pas simplement regarder sa pelouse ou ses fleurs pousser, c’est aussi en prendre soin. Et pour faire les choses correctement, pourquoi ne pas installer un système d’arrosage enterré ? Nous vous prouverons dans cet article que ce système est pratique, esthétique et économique.
Lire la suite
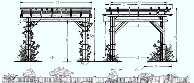
Comment construire une tonnelle de jardin ?
Construire soi-même sa pergola offrirait un double plaisir à celui qui en serait le concepteur : d'une part le plaisir d'apporter une touche décorative, ensuite celui d'en être le réalisateur. Vous découvrirez dans cet article des conseils pour construire votre pergola.
Lire la suite
Bâtir soi-même sa cabane de jardin
Il est très facile de construire une cabane de jardin. Dans cet article, nous vous donnerons des conseils pratiques pour que vous puissiez bâtir vous-même votre cabane et lui donner une touche personnelle.
Lire la suite
Construire sa propre tonnelle
Tonnelle ou pergola apportent une touche de fraîcheur à votre jardin. Si vous vous sentez l'âme d'un bricoleur, il vous est possible de réaliser cette construction en suivant les instructions ci-dessous.
Lire la suite
Faire un puit perdu
Quelque fois, on est amené à construire un puit perdu à côté de son habitation. Le présent article donne les démarches à suivre pour réussir ce travail.
Lire la suite
Le palmier à cire : plantation, entretien et utilisation
Lire la suite
